アールネット合同会社

TEL0985-24-6130
受付:10:00~19:00 不定休

【新築】 宮崎市 清武町 岡3丁目 3LDK 平屋  B号棟   [No.1290]  NEW


                 
物件名 【新築】 宮崎市 清武町 岡3丁目 3LDK 平屋  B号棟  
物件所在地 宮崎市清武町岡3丁目2-3
価格、種別 3700万円 新築戸建
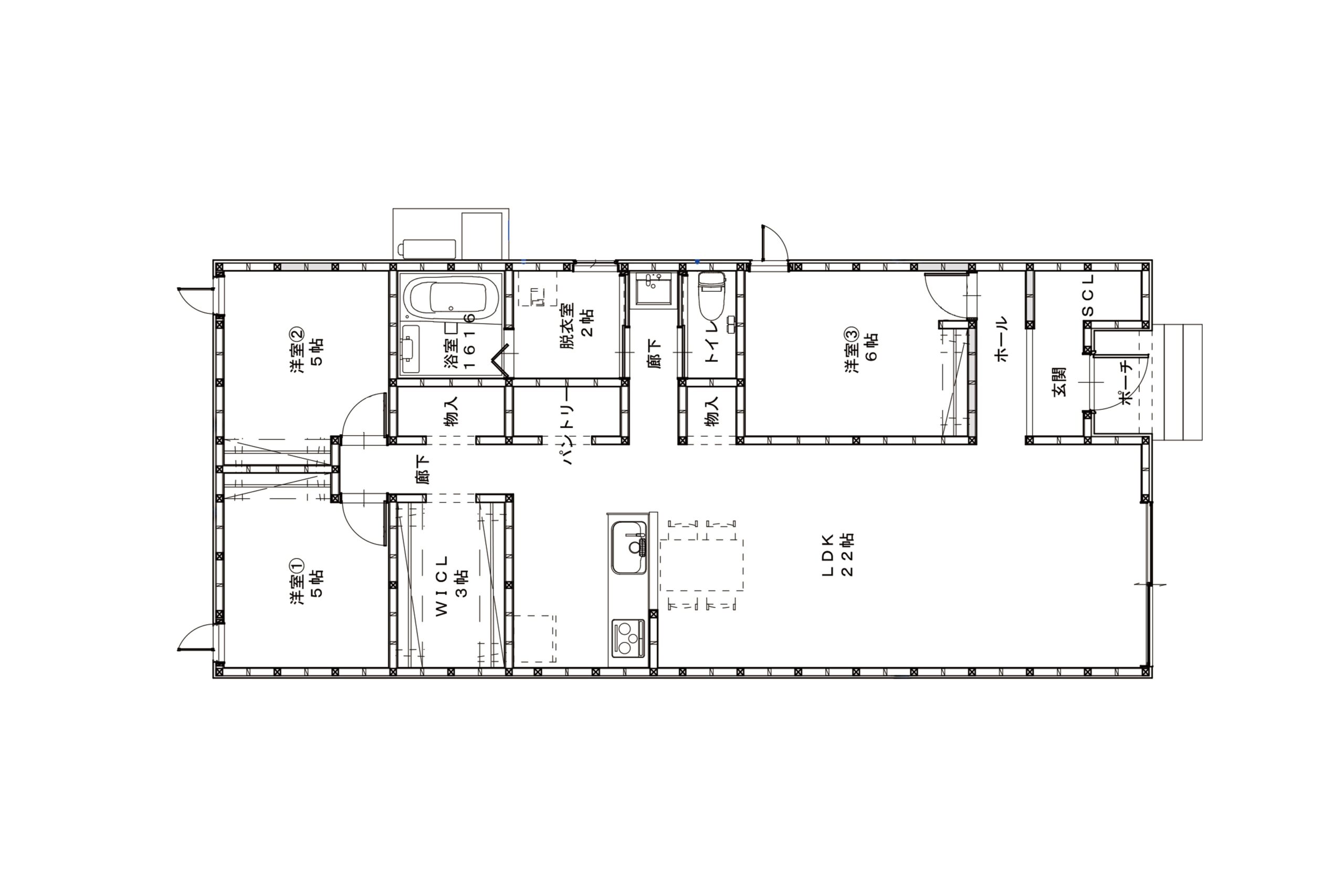
新築、間取り 令和7年12月完成  3LDK
検索ワード 宮崎市 新築 戸建 建売 平屋 駐車場2台 南道路 日当たり良好 お洒落 オール電化 清武小学校 ハザードマップ 閑静な住宅街 収納豊富
建物面積、土地面積 建物面積 91.09㎡(27.55坪) 土地面積 191.45㎡ (57.92坪)
現況 未入居
交通、学区 清武小学校/清武中学校 
接道状況 南 公道 約6m
用途地域/地目 第2種住居地域  宅地
土地権利 所有権
建ぺい率/容積率 建ぺい率60%/容積率200%
情報登録日、取引態様 一般媒介
詳細情報 南道路で陽当たり良好の新築平屋です。
室内は、白と木目調のデザインで、間取りは家事同線、収納豊富でスッキリ
内覧ご希望の方は、是非ご予約ください。
地図
こだわりアイコン 戸建住宅
更新日時 登録:2026年02月28日 13時45分
更新:2026年02月28日 14時53分

<< 前のページに戻る

おすすめ物件

↑ PAGE TOP

Copyright© R-net All Rights Reserved.